閘閥種類有哪些?
發布時間:2021-03-18 11:04:20 訪問:
-
閘閥
本詞條由“科普中國”科學百科詞條編寫與應用工作項目 審核 。
閘閥(gate valve)是一個啟閉件閘板,閘板的運動方向與流體方向相垂直,閘閥只能作全開和全關,不能作調節和節流。閘閥通過閥座和閘板接觸進行密封,通常密封面會堆焊金屬材料以增加耐磨性,如堆焊1Cr13、STL6、不銹鋼等。閘板有剛性閘板和彈性閘板,根據閘板的不同,閘閥分為剛性閘閥和彈性閘閥。
- 閘閥
- Gate valve
- 閘板隨閥桿一起作直線運動的
- 金屬材料、閥體襯里、非金屬材料
- 較傳統閘閥重量減輕約20%~30%
- 移動做全開和全關切斷用
- 閘板
目錄
- 1 工作原理
- 2 運動方式
- 3 閘閥種類
- 4 優缺點
- ? 優點
- ? 缺點
- 5 閘閥特點
- ? 重量輕
- ? 平底式閘座
- ? 整體包膠
- ? 精鑄閥體
- 6 注意事項
- 7 主要標準
- 8 安裝要點
工作原理
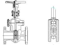
閘閥的啟閉件是閘板,閘板的運動方向與流體方向相垂直,閘閥只能作全開和全關,不能作調節和節流。閘板有兩個密封面,最常用的模式閘板閥的兩個密封面形成楔形、楔形角隨閥門參數而異,通常為5°,介質溫度不高時為2°52'。楔式閘閥的閘板可以做成一個整體,叫做剛性閘板;也可以做成能產生微量變形的閘板,以改善其工藝性,彌補密封面角度在加工過程中產生的偏差,這種閘板叫做彈性閘板。閘閥關閉時,密封面可以只依靠介質壓力來密封,即依靠介質壓力將閘板的密封面壓向另一側的閥座來保證密封面的密封,這就是自密封。大部分閘閥是采用強制密封的,即閥門關閉時,要依靠外力強行將閘板壓向閥座,以保證密封面的密封性。閘閥的閘板隨閥桿一起作直線運動的,叫升降桿閘閥,亦叫明桿閘閥。通常在升降桿上有梯形螺紋,通過閥門頂端的螺母以及閥體上的導槽,將旋轉運動變為直線運動,也就是將操作轉矩變為操作推力。開啟閥門時,當閘板提升高度等于閥門通徑的1:1倍時,流體的通道完全暢通,但在運行時,此位置是無法監視的。實際使用時,是以閥桿的頂點作為標志,即開不動的位置,作為它的全開位置。為考慮溫度變化出現鎖死現象,通常在開到頂點位置上,再倒回1/2-1圈,作為全開閥門的位置。因此,閥門的全開位置,按閘板的位置即行程來確定。有的閘閥,閥桿螺母設在閘板上,手輪轉動帶動閥桿轉動,而使閘板提升,這種閥門叫做旋轉桿閘閥,或叫暗桿閘閥。

運動方式
閘閥關閉時,密封面可以只依靠介質壓力來密封,即只依靠介質
z41h法蘭楔式閘閥
壓力將閘板的密封面壓向另一側的閥座來保證密封面的密封,這就是自密封。大部分閘閥是采用強制密封的,即閥門關閉時,要依靠外力強行將閘板壓向閥座, 以保證密封面的密封性。

運動方式:閘閥的閘板隨閥桿一起作直線運動的,亦叫明桿閘閥。通常在升降桿上 有梯形螺紋,通過閥門頂端的螺母以及閥體上的導槽,將旋轉運動變為直線運動,也就是將操作轉矩變為操作推力。開啟閥門時,當閘板提升高度等于閥門通徑的1:1倍時,流體的通道完全暢通,但在運行時,此位置是無法監視的。實際使用時,是以閥桿的頂點作為標志,即開不動的位置,作為它的全開位置。為考慮溫度變化出現鎖死現象 , 通常在開到頂點位置上 , 再倒回 1/2-1圈,作為全開閥門的位置。因此,閥門的全開位置,按閘板的位置(即行程〉來確定。有的閘閥閥桿螺母設在閘板上,手輪轉動帶動閥桿轉動,而使閘板提升,這種閥門叫做旋轉桿閘閥或叫暗桿閘閥。
閘閥種類
國內生產閘閥的廠家比較多,連
剛性單閘板閘閥
接尺寸也大多不統一。主要分以下幾個大類:1、按JB/T2203-1999《閘閥結構長度》生產的機械部標準閥門;2、按GB/T12221-2005《金屬閥門結構長度》生產的國標閥門;3、按ASME B16.10-2009《閥門的面對面及端對端尺寸》生產的美標閥門。

閘閥按閘板的結構不同分為楔式和平行式兩類。楔式閘板有3種結構:單閘板、雙閘板和彈性閘板。
閘閥根據結構類型的不同又分為平板閘閥和刀型閘閥。
手動閘閥工作原理:轉動手輪,通過手輪與閥桿的螺紋的進、退,提升或下降與閥桿連接的閥板,達到開啟和關閉的作用。
按殼體/主體材料分類,閘閥可分為:
金屬材料閥門:如碳鋼閥門、合金鋼閥門、不銹鋼閥門、鑄鐵閥門、鈦合金閥門、蒙乃爾閥門、銅合金閥門、鉛合金閥門等。
金屬閥體襯里閥門:如襯膠閥門、襯氟閥門、襯鉛閥門、襯塑閥門、襯搪瓷閥門。
非金屬材料閥門:如陶瓷閥門、玻璃閥門、塑料閥門。
優缺點
優點
1、流動阻力小。閥體內部介質通道是直通的,介質成直線流動,流動阻力小。
2、啟閉時較省力。是與截止閥相比而言,因為無論是開或閉,閘板運動方向均與介質流動方向相垂直。
3、高度大,啟閉時間長。閘板的啟閉行程較大,升降是通過螺桿進行的。
4、水錘現象不易產生。原因是關閉時間長。
5、介質可向兩側任意方向流動,易于安裝。閘閥通道兩側是對稱的。
6、結構長度(系殼體兩連接端面之間的距離)較小。
7、形體簡單,結構長度短,制造工藝性好,適用范圍廣。
8、結構緊湊,閥門剛性好,通道流暢,流阻數小,密封面采用不銹鋼和硬質合金,使用壽命長,采用PTFE填料,密封可靠,操作輕便靈活。
缺點
密封面之間易引起沖蝕和擦傷,維修比較困難。外形尺寸較大,開啟需要一定的空間,開閉時間長。結構較復雜。
平行雙閘板閘閥

閘閥特點
重量輕
本體采用高級球墨鑄鐵制成,重量較傳統閘閥重量減輕約20%~30%,安裝維修方便。
平底式閘座
傳統的閘閥往往在通水洗管后即因外物諸如石頭,木塊、水泥、鐵屑、雜物等淤積于閥底凹槽內,容易造成無法關閉緊密而形成漏水現象,彈性座封閘閥底部采用與水管機同的平底設計,不易造成雜物淤積,使流體暢通無阻。
整體包膠
閘板采用高品質的橡膠進行整體內、外包膠,歐洲的橡膠硫化技術使得硫化后的閘板能夠保證精確的幾何尺寸,且橡膠與球墨鑄閘板接著牢靠,不易脫落及彈性記憶佳。
精鑄閥體
閥體采用精密鑄造,精確的幾何尺寸使得閥體內部無需任何精加工即可保證閥門的密封性。
注意事項
1、手輪、手柄及傳動機構均不允許作起吊用,并嚴禁碰撞。
2、雙閘板閘閥應垂直安裝(即閥桿處于垂直位置,手輪在頂部 )。
3、帶有旁通閥的閘閥在開啟前應先打開旁通閥(以平衡進出口的壓差及減小開啟力 )。
4、帶傳動機構的閘閥,按產品使用說明書的規定安裝。
5、如果閥門經常開關使用,每月至少潤滑一次。
6、閘閥只供全開、全關各類管路或設備上的介質運行之用,不允許作節流用。
7、帶手輪或手柄的閘閥,操作時不得再增加輔助杠杠(若遇密封不嚴,則應檢查修復密封面或其他零件)。手輪、手柄順時針旋轉為關閉,反之則開啟。帶傳動機構的閘閥應按產品使用說明書的規定使用。 [1]
主要標準
手動刀型閘閥
(1)GB/T 12232-2005 通用閥門 法蘭連接鐵制閘閥

(2)GB/T 12234-2007 石油、天然氣工業用螺柱連接閥蓋的鋼制閘閥
(3)GB8464-87 《內螺紋連接閘閥、截止閥、球閥、止回閥通用技術條例》
(4)GB8465.1-87《內螺紋連接閘閥、截止閥、球閥、止回閥 基本尺寸 鐵制閘閥》
(5)JB/T53162-1999 《閘閥產品質量分等》
(6)JB/T5298-91《管線用鋼制平板閘閥》
(7)JB/Z243-85《閘閥靜壓壽命實驗規程》
(8)JB/TQ648-8《鐵質對夾式平板閘閥》
(9)JB/T53200-94《鐵質對價平板閘閥 產品質量分等》
(10)JB/T53242-94《鋼制平板閘閥 產品質量分等》
安裝要點
1)、安裝位置、高度、進出口方向必須符合設計要求,連接應牢固緊密。
暗桿楔式鑄鐵閘閥

2)、安裝在保溫管道上的各類手動閥門,手柄均不得向下。
3)、閥門安裝前必須進行外觀檢查,閥門的銘牌應符合現行國家標準《通用閥門標志》GB 12220的規定。對于工作壓力大于1.0 MPa 及在主干管上起到切斷作用的閥門,安裝前應進行強度和嚴密性能試驗,合格后方準使用。強度試驗時,試驗壓力為公稱壓力的1.5倍,持續時間不少于5min,閥門殼體、填料應無滲漏為合格。嚴密性試驗時,試驗壓力為公稱壓力的1.1倍;試驗壓力在試驗持續的時間應符合GB 50243標準要求,以閥瓣密封面無滲漏為合格。
4)、手輪、手柄及傳動機構均不允許作起吊用,嚴禁碰撞。
5)、帶傳動機構的閘閥,按產品使用說明書的規定安裝。
【本文內容來源百度百科】
上海廣閥閥門有限公司是專業于工業,給排水設備的研發、生產、制造、銷售于一體的綜合性閥門企業。主導產品有:蝶閥,球閥,閘閥,截止閥,止回閥,電動閥門,氣動閥門,不銹鋼閥門…產品廣泛應用于石油、電力、采礦、排水及供熱等行業。產品暢銷國內各大中型企業,并致力于開拓國際市場,竭誠為客戶提供滿意的售前、售中和售后服務。